风机参数-罗茨风机参数汇总!
风机参数是一个非常宽泛的词,其涵盖的内容也较多,每个种类的风机参数都会有所区别,如,离心风机、沉水罗茨风机、负压罗茨风机、正压罗茨风机、多级离心风机等等,都会涉及到非常多的数值参数。今天小编为大家整理了一下罗茨风机的参数,涵盖面更加广泛!
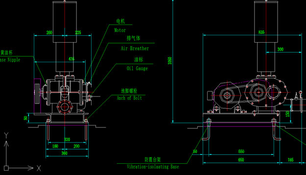
1、罗茨风机设计参数
先为大家呈上一份罗茨风机CAD制图截图,罗茨风机在设计之初,就会使用到非常多的数据,通过专业的制作软件进行设计,其中设计的参数有很多,如:消音器的直径、机壳的大小、整机的高度、底座宽度、螺栓型号参数等,都是罗茨风机设计参数,这些参数作为采购方可不必关注,但是作为制造方,这些参数是必备的。

2、罗茨风机选型参数
罗茨风机在通过严格的设计之后,经过数控加工成型,然后进行组装,组装好之后就可以进行售卖了。选型参数也是我们厂家和客户之间沟通的重点,其中涵盖的参数有:风量、压力、口径、转速、密封、型号、电机功率等。在选型方面,zhui多用到的参数为:风量、压力、转速。
选型参数可以在选型样本上看到,作为采购客户,我们不必和厂家索要,然后自己进行选型,如果不是很专业,那么我们拿过来之后自己也会懵的,而且选型样本不单单会有一本,一般来说会有多本,不同类型的罗茨风机会单独成本,而让厂家全部为我们提供也不是很现实,原因是样本参数表有非常多,涵盖所有型号参数,拿到之后对于我们来说反而成了麻烦,我们只需要根据实际需求,与厂家多进行沟通即可。让厂家帮助我们确定相应的参数。

此图为华东三叶罗茨风机选型表部分
3、安装时需要的参数
对于没用使用过罗茨风机的客户来说,在安装使用时,需要先建立基础,基础需要根据厂家的指导来做,如:基础平台的宽度、厚度、地脚螺栓位置参数等,同时我们还需要根据实际管道的情况进行规划设定。
在安装试运行时我们还需要关注仪表参数,仪表参数是我们的参考数值,超过或者低于都不能适应工况的要求,所以,仪表参数也是我们在平时多加关注的内容。
小结:罗茨风机的参数有很多,对于生产方来说,需要对这些参数全部掌握,这样才更加专业,而对于使用方来说,我们只需要关注选型参数即可,对于实际维护操作者,我们需要对罗茨风机安装使用时的一些参数进行关注,确保罗茨风机的正常运转。如果您有采购方面的问题,可以联系我们的官方客服热线4008-797-786
相关文章阅读:
最新产品
同类文章排行
- 华东团建 | 山水古韵间,凝心再出发
- 凝心聚力,踏歌而行 | 华东风机山西忻州团建之旅圆满结束!
- 荣耀同行·聚力未来——2025华东风机古都洛阳文化之旅圆满收官
- 华东之风 运动之美——华东风机2025春季运动会
- 喜报!山东华东风机入选国家专利密集型产品名单,彰显创新硬实
- 春风送暖入家门:华东风机有限公司开展优秀员工慰问活动
- 喜报--华东风机入选山东省高端品牌培育企业名单
- 喜报|华东风机成功入选2024年度山东省首台(套)技术装备生产企业及产
- 华东螺杆鼓风机案例----郑州***污水处理厂
- 喜讯!华东风机中标海螺水泥磁悬浮离心鼓风机采购项目
最新资讯文章
您的浏览历史








